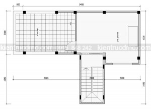
Mặt bằng tầng 4 – Thiết kế cải tạo nhà phố nhỏ 43m2.
Chuyên mục
Bài viết mới nhất
Tên dự án: Biệt thự mái nhật trên đồi Địa điểm xây dựng công trình: Tâm Cương - Thái Nguyên Tổng diện tích xây dựng :
Xem ngayChủ đầu tư: UBND Phường Đình Bảng Tổng diện tích khu đất: 16942,9 m2 Nguồn vốn đầu tư: Ngân sách nhà nước
Xem ngayChủ đầu tư: Ban Quản lý dự án ĐTXD quận Ba Đình Diện tích xây dựng: 76,9m2 Quy mô: 04 tầng
Xem ngayDiện tích: 13985m2 Diện tích xây dựng: 3453m2 Diện tích sàn: 6660m2
Xem ngayDiện tích đất: 513m2 Diện tích xây dựng: 2890m2 Tầng cao: 5 tầng
Xem ngay


Gửi nhận xét của bạn
You must be logged in to post a comment.