Tư vấn thiết kế kiến trúc nhà đẹp và nội thất tại Hà nội
Kiến trúc DMC
Thiết kế nhà đẹp, thiết kế biệt thự mini

Thiết kế nhà đẹp, thiết kế biệt thự mini

Thiết kế nhà đẹp, thiết kế biệt thự mini

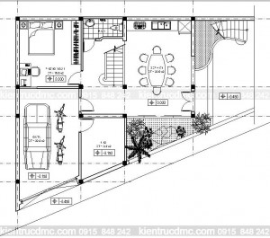
Mặt bằng tầng 1 – Biệt thự mini 3 tầng trên đất hình thang

Gửi nhận xét của bạn