Tư vấn thiết kế kiến trúc nhà đẹp và nội thất tại Hà nội
Kiến trúc DMC
Thiết kế khách sạn, nhà nghỉ cao cấp 8 tầng

Thiết kế khách sạn, nhà nghỉ cao cấp 8 tầng

Thiết kế khách sạn, nhà nghỉ cao cấp 8 tầng

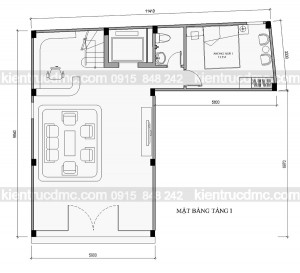
Thiết kế khách sạn, nhà nghỉ cao cấp 8 tầng – Tầng 1

Gửi nhận xét của bạn